Multilocale in vendita

Buja, Via Santo Stefano
€ 33.000
Prezzo aggiornato
1 locale 1 locale
52 Mq 52 Mq
1 bagno 1 bagno

Multilocale in vendita

Buja, Via Santo Stefano

Descrizione annuncio

Tecnocasa la più grande rete di intermediazione in Europa con 2807 punti vendita in Italia e 4022 nel mondo vi propone:

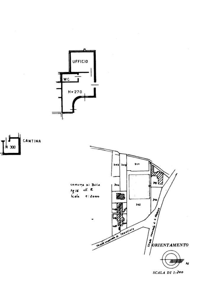
Studio situato in una palazzina moderna, nel cuore di Buja. L’immobile si trova al secondo piano di un edificio dotato di ascensore ed è composto da un ingresso che conduce allo studio/ufficio principale, e da un grazioso disimpegno che prosegue la stanza, utile anche come zona d’attesa.

Prima del bagno è presente un comodo guardaroba, ideale per riporre giacche, borse o altro materiale d’uso quotidiano. L’ufficio dispone inoltre di un bagno interno, di piccole dimensioni ma funzionale e confortevole.

Completa la proprietà una cantina di pertinenza, utile come spazio di archivio o deposito.

L’immobile rappresenta un’ottima opportunità, grazie alla sua posizione centralissima, in una zona di passaggio con tutti i servizi nelle immediate vicinanze.

Mostra tutto

Nelle vicinanze

Scuole Scuole
Scuola materna Franco Andrea Nicoloso
280 m
Scuola Primaria Pieri Menis
350 m
Scuola Secondaria di Primo Grado Enrico Ursella
990 m
Scuole
1,3 Km
Scuola Primaria Caterina Percoto
1,7 Km
Farmacia Farmacia
Farmacia Rizzi
90 m
Farmacia Dr. Alessandro Da Re
310 m
Supermercati Supermercati
Euro Spin
120 m
Supermercato Iper Visotto
540 m
Sopermercato Coopca
1,3 Km
Negozi Negozi
Le Panarie
1,6 Km
Bar Bar
Bar Company
1,3 Km
Ristoranti Ristoranti
Tabeacco
50 m
I Primi Due
1,2 Km
Ristorante Belvedere
1,8 Km
I benandanti
1,9 Km
Ledra est
2,2 Km
Mostra tutto

Caratteristiche

Rif.:
61139083
Piano:
2 di 4 con ascensore (Piano su più livelli)
Arredamento:
Assente
Condizionamento:
Assente
Ascensore:
Riscaldamento:
Centralizzato
Mostra tutto
Prezzo Prezzo
€ 33.000
Rata mutuo Rata mutuo
€ 157 / mese
Spese annue Spese annue
€ 200
Proponi il tuo prezzoProponi il tuo prezzo

Classe Energetica

Questo immobile è esente da classe energetica
Anno di costruzione:
1990
Riscaldamento:
Centralizzato
Tipo impianto:
A radiatori
Tipo alimentazione:
Metano

Prezzo ridotto di €1 (11%%)

Ti interessa visionare l'immobile?

Fissa un appuntamento  Fissa un appuntamento

Richiedi informazioni

Clicca su Leggi per aprire l'informativa
* Questi campi sono obbligatori

Calcola il tuo mutuo

Semplice e senza impegno
Anticipo

( % )
Mutuo

( % )

pochi semplici passi

inserisci i tuoi dati
Questionario completato
Grazie per aver richiesto un appuntamento senza impegno con un nostro Consulente del Credito e Assicurativo.

Hai inserito correttamente tutti i dati necessari e a breve riceverai una e-mail con un link da convalidare per inviare i tuoi dati.
Affiliato
Egemone Srl
Via Roma, 98 33013 Gemona Del Friuli (UD)

Il nostro staff


  • Emily Bendo
    Coordinatrice

  • Emanuele Londero
    Collaboratore

  • Tomi Dedushaj
    Affiliato
Via Roma, 98 33013 Gemona Del Friuli (UD)
Zona: Gemona del Friuli
Mostra su mappa
Affiliato
Egemone Srl
Via Roma, 98 33013 Gemona Del Friuli (UD)

2026 Tecnocasa Franchising S.p.A. - P. IVA 08365160152 - Via Monte Bianco 60/A 20089 Rozzano (MI). Ogni agenzia ha un proprio titolare ed è autonoma. Privacy policy | Policy utilizzo | Cookie policy