Palazzina in vendita

Buja, Via cjavergiari
€ 108.000
12 locali 12 locali
1040 Mq 1040 Mq
5 bagni 5 bagni

Palazzina in vendita

Buja, Via cjavergiari

Descrizione annuncio

Tecnocasa la più grande rete di intermediazione in Europa con 2867 punti vendita in Italia e 4099 nel mondo vi propone:

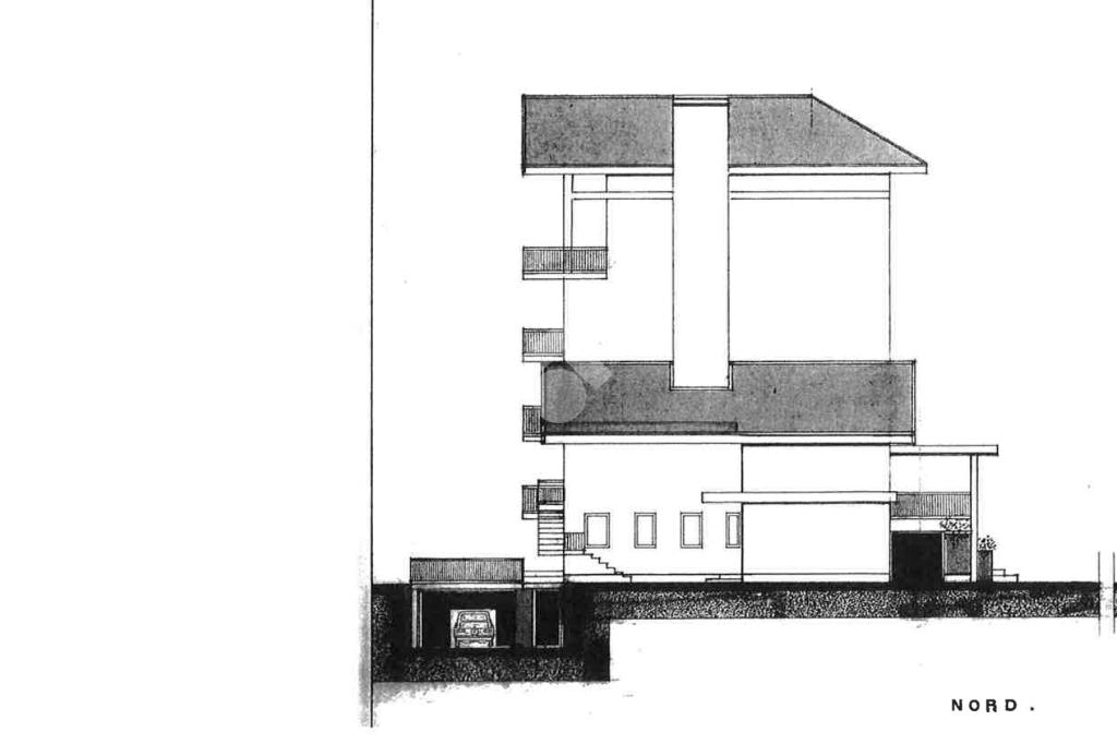
Palazzina grezza in vendita a Buja – grande potenziale di sviluppo

In tranquilla zona residenziale di Buja, a 10 minuti dal centro, proponiamo in vendita palazzina allo stato grezzo, completamente da ristrutturare, che rappresenta una opportunità unica di investimento e sviluppo immobiliare.

L’immobile offre la possibilità di realizzare una palazzina composta da 5 appartamenti, sviluppati fino al 3° piano con struttura antisismica, oltre a soffitta e piano interrato.
È già presente la predisposizione per ascensore, elemento che valorizza ulteriormente il progetto e la futura fruibilità degli spazi.

La proprietà è dotata di predisposizioni per tutti gli allacci principali: gas, luce, acqua, fognatura e sala contatori.
Sono inoltre disponibili eventuali progetti che permettono di comprendere al meglio la distribuzione e le potenzialità degli spazi su ogni piano.

Completa l’offerta la possibilità di realizzare posti auto esterni a servizio di tutti gli appartamenti.

Soluzione ideale per imprese, investitori o privati alla ricerca di un immobile da personalizzare in un contesto tranquillo, con ampie possibilità di valorizzazione.

Mostra tutto

Nelle vicinanze

Trasporto pubblico Trasporto pubblico
Artegna Statale 13 Bivio Buia (SR 13)
Artegna Statale 13 Bivio Buia (SR 13)
2,5 Km
Scuole Scuole
Scuola Primaria Caterina Percoto
290 m
Scuola materna Franco Andrea Nicoloso
1,7 Km
Scuola Primaria Pieri Menis
2,2 Km
Scuole
2,3 Km
Scuola Secondaria di Primo Grado Enrico Ursella
2,9 Km
Farmacia Farmacia
Farmacia Dr. Alessandro Da Re
1,7 Km
Farmacia Rizzi
1,9 Km
Farmacia Zappetti
3,0 Km
Supermercati Supermercati
Sopermercato Coopca
780 m
Supermercato Iper Visotto
1,6 Km
Euro Spin
2,1 Km
Qualì
3,0 Km
Negozi Negozi
Le Panarie
1,1 Km
Macelleria Pascottini Silvano
3,0 Km
Bar Bar
Bar Company
2,4 Km
Alla Fonte
2,5 Km
Discoteca La Grotta
2,8 Km
Fly Bar
2,9 Km
Da Luciano
3,0 Km
Ristoranti Ristoranti
Ristorante Belvedere
1,2 Km
Tabeacco
2,0 Km
Agriturismo San Floreano
2,1 Km
Agriturismo Coleto
2,1 Km
I Primi Due
2,3 Km
Mostra tutto

Caratteristiche

Rif.:
61157692
Piano:
5 di 4 (Piano su più livelli)
Posti auto:
8
Terrazzi:
4
Camere da letto:
8
Arredamento:
Assente
Mostra tutto
Prezzo Prezzo
€ 108.000
Rata mutuo Rata mutuo
€ 515 / mese
Spese annue Spese annue
€ 0
Proponi il tuo prezzoProponi il tuo prezzo

Altre caratteristiche

Classe Energetica

Questo immobile è esente da classe energetica
Anno di costruzione:
1995
Riscaldamento:
Assente

Ti interessa visionare l'immobile?

Fissa un appuntamento  Fissa un appuntamento

Richiedi informazioni

Clicca su Leggi per aprire l'informativa
* Questi campi sono obbligatori

Calcola il tuo mutuo

Semplice e senza impegno
Anticipo

( % )
Mutuo

( % )

pochi semplici passi

inserisci i tuoi dati
Questionario completato
Grazie per aver richiesto un appuntamento senza impegno con un nostro Consulente del Credito e Assicurativo.

Hai inserito correttamente tutti i dati necessari e a breve riceverai una e-mail con un link da convalidare per inviare i tuoi dati.
Affiliato
Egemone Srl
Via Roma, 98 33013 Gemona Del Friuli (UD)

Il nostro staff


  • Emily Bendo
    Coordinatrice

  • Emanuele Londero
    Collaboratore

  • Tomi Dedushaj
    Affiliato
Via Roma, 98 33013 Gemona Del Friuli (UD)
Zona: Gemona del Friuli
Mostra su mappa
Affiliato
Egemone Srl
Via Roma, 98 33013 Gemona Del Friuli (UD)

2026 Tecnocasa Franchising S.p.A. - P. IVA 08365160152 - Via Monte Bianco 60/A 20089 Rozzano (MI). Ogni agenzia ha un proprio titolare ed è autonoma. Privacy policy | Policy utilizzo | Cookie policy