Villa singola in vendita

Gemona Del Friuli, Via sacra
€ 210.000
5 locali 5 locali
167 Mq 167 Mq
3 bagni 3 bagni

Villa singola in vendita

Gemona Del Friuli, Via sacra

Descrizione annuncio

Tecnocasa la più grande rete di intermediazione in Europa con 2807 punti vendita in Italia e 4022 nel mondo vi propone:

In una tranquilla zona residenziale di Gemona del Friuli, proponiamo in vendita una villa singola immersa nel verde, circondata da un ampio giardino di circa 2.000 mq, perfetto per chi desidera vivere in un ambiente riservato e a contatto con la natura.

L'immobile si sviluppa principalmente su un unico livello, dove la zona giorno e la zona notte si distribuiscono in maniera funzionale e comoda. La casa è composta da una cucina abitabile con accesso diretto al terrazzo e da un soggiorno separato, anch'esso collegato all’esterno tramite una terrazza, ideale per momenti di relax all’aperto. Un pratico ripostiglio completa la zona giorno.

La zona notte offre quattro camere da letto, di cui due matrimoniali – una con accesso diretto alla terrazza – e due camere singole, ideali per figli, ospiti o come studio.

I bagni sono tre: due sono dotati di vasca uno dispone anche di un box doccia, il terzo composto da wc e lavanderia.

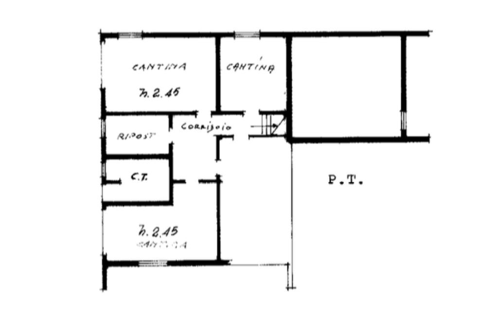
Al piano seminterrato si trovano diverse stanze ad uso cantina e un garage. All’esterno sono presenti anche due depositi indipendenti, perfetti per il ricovero di attrezzi o per eventuali hobby.

L'immobile nasce originariamente come bifamiliare, offrendo quindi la possibilità concreta di realizzare due unità abitative con ingressi separati. Questa caratteristica rende la proprietà particolarmente interessante sia per famiglie numerose che per chi desidera un’abitazione con una seconda unità da destinare a parenti, ospiti o locazione.

Soluzione ideale per chi cerca spazio, tranquillità e versatilità a pochi minuti dal centro di Gemona.

Mostra tutto

Nelle vicinanze

Trasporto pubblico Trasporto pubblico
Gemona del Friuli
Gemona del Friuli
830 m
Via Bersaglio – casa di riposo
Via Bersaglio – casa di riposo
220 m
Via Bersaglio incrocio Via Zardini
Via Bersaglio incrocio Via Zardini
270 m
Ricariche auto elettriche Ricariche auto elettriche
Gruppo Bravi
1,8 Km
EnelX EVA+ Gemona Via Osoppo | EnelX
2,3 Km
Scuole Scuole
Scuole Santa Maria degli Angeli
450 m
Liceo scientifico "Luigi Magrini"
500 m
Scuole
500 m
Scuola secondaria di I grado "Generale Antonio Cantore"
520 m
Istituto tecnico commerciale e per geometri "Giuseppe Marchetti"
520 m
Farmacia Farmacia
Farmacia Alla Madonna
510 m
Farmacia Bissaldi
680 m
Farmacia Cons
960 m
Ospedali Ospedali
Punto di Primo Intervento Gemona
900 m
Ospedale Civile San Michele
990 m
Supermercati Supermercati
Eurospar
640 m
Prix
640 m
Coop
910 m
Eurospin
1,8 Km
Discount Centro Commerciale
1,9 Km
Negozi Negozi
Panificio Treppo
1,1 Km
Panificio Cragnolini
1,1 Km
Cumini Easy
1,7 Km
Apple
1,7 Km
NKD
1,7 Km
Bar Bar
Atlantis
390 m
Fashion Cafè
610 m
Al Nazionale
670 m
Rendez-vous
710 m
Arengo
1,0 Km
Ristoranti Ristoranti
38° Parallelo
490 m
Al Feralut
770 m
Locanda enoteca Al Centrâl
820 m
Al Tallero
870 m
Albergo Trattoria da Si Si
1,0 Km
Mostra tutto

Caratteristiche

Rif.:
61128913
Piano:
2 di 2 (Piano su più livelli)
Box:
1
Posti auto:
3
Balconi:
1
Terrazzi:
1
Mostra tutto
Prezzo Prezzo
€ 210.000
Rata mutuo Rata mutuo
€ 991 / mese
Spese annue Spese annue
€ 0
Proponi il tuo prezzoProponi il tuo prezzo

Classe Energetica

Questo immobile è esente da classe energetica
Anno di costruzione:
1984
Riscaldamento:
Autonomo
Tipo impianto:
A radiatori
Tipo alimentazione:
Metano

Ti interessa visionare l'immobile?

Fissa un appuntamento  Fissa un appuntamento

Richiedi informazioni

Clicca su Leggi per aprire l'informativa
* Questi campi sono obbligatori

Calcola il tuo mutuo

Semplice e senza impegno
Anticipo

( % )
Mutuo

( % )

pochi semplici passi

inserisci i tuoi dati
Questionario completato
Grazie per aver richiesto un appuntamento senza impegno con un nostro Consulente del Credito e Assicurativo.

Hai inserito correttamente tutti i dati necessari e a breve riceverai una e-mail con un link da convalidare per inviare i tuoi dati.
Affiliato
Egemone Srl
Via Roma, 98 33013 Gemona Del Friuli (UD)

Il nostro staff


  • Emily Bendo
    Coordinatrice

  • Emanuele Londero
    Collaboratore

  • Jennifer Perrotta
    Collaboratrice

  • Tomi Dedushaj
    Affiliato
Via Roma, 98 33013 Gemona Del Friuli (UD)
Zona: Gemona del Friuli
Mostra su mappa
Affiliato
Egemone Srl
Via Roma, 98 33013 Gemona Del Friuli (UD)

2025 Tecnocasa Franchising S.p.A. - P. IVA 08365160152 - Via Monte Bianco 60/A 20089 Rozzano (MI). Ogni agenzia ha un proprio titolare ed è autonoma. Privacy policy | Policy utilizzo | Cookie policy