Palazzina in vendita

Venzone, Via moggio - Carnia
€ 298.000
10 locali 10 locali
915 Mq 915 Mq
8 bagni 8 bagni

Palazzina in vendita

Venzone, Via moggio - Carnia

Descrizione annuncio

Tecnocasa, la più grande rete di intermediazione immobiliare in Europa con 2.807 punti vendita in Italia e 4.022 nel mondo, propone in vendita:

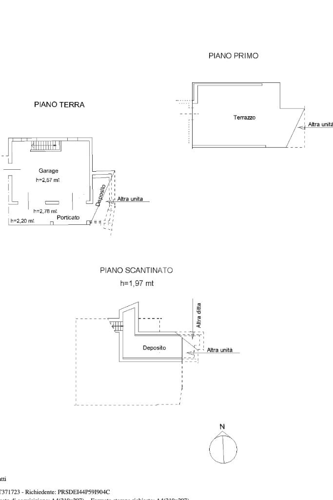
Una palazzina indipendente costruita negli anni ’90, ideale sia come investimento che come soluzione plurifamiliare. L’immobile è composto da quattro appartamenti, ben distribuiti e luminosi.

Due unità abitative sono composte da tre camere da letto, due bagni, cucina, soggiorno e balcone per ciascun appartamento, offrendo spazi ampi e confortevoli. Le altre due unità sono invece composte da due camere da letto, un bagno, cucina, soggiorno e balcone per ciascun appartamento, risultando funzionali e ben organizzate.

La proprietà include inoltre un laboratorio, perfetto per attività artigianali o professionali, due ampi garage e un giardino privato che offre uno spazio verde riservato e vivibile.

L’edificio è dotato di riscaldamento a metano, garantendo comfort ed efficienza energetica. La struttura, solida e ben mantenuta, rappresenta una soluzione versatile in un contesto tranquillo.

Mostra tutto

Nelle vicinanze

Trasporto pubblico Trasporto pubblico
stazione di Carnia
stazione di Carnia
400 m
Carnia Stazione Ferroviaria
Carnia Stazione Ferroviaria
390 m
Carnia Bivio Stazione
Carnia Bivio Stazione
400 m
Supermercati Supermercati
Supermercato Alto Friuli
660 m
Bar Bar
Bar alla Lotta
370 m
Bar Posta
470 m
Ristoranti Ristoranti
Hotel Carnia
770 m
Alma Living Hotel (Ex Girarrosto)
1,4 Km
Cison
2,3 Km
Mostra tutto

Caratteristiche

Rif.:
61202810
Piano:
4 di 4 (Piano su più livelli)
Box:
2
Posti auto:
2
Balconi:
4
Terrazzi:
1
Mostra tutto
Prezzo Prezzo
€ 298.000
Rata mutuo Rata mutuo
€ 1.421 / mese
Spese annue Spese annue
€ 0
Proponi il tuo prezzoProponi il tuo prezzo
Immobile valutato con T·Valuta

Classe Energetica

Questo immobile è esente da classe energetica
Anno di costruzione:
1980
Riscaldamento:
Autonomo
Tipo impianto:
A radiatori
Tipo alimentazione:
Metano

Ti interessa visionare l'immobile?

Fissa un appuntamento  Fissa un appuntamento

Richiedi informazioni

Clicca su Leggi per aprire l'informativa
* Questi campi sono obbligatori

Calcola il tuo mutuo

Semplice e senza impegno
Anticipo

( % )
Mutuo

( % )

pochi semplici passi

inserisci i tuoi dati
Questionario completato
Grazie per aver richiesto un appuntamento senza impegno con un nostro Consulente del Credito e Assicurativo.

Hai inserito correttamente tutti i dati necessari e a breve riceverai una e-mail con un link da convalidare per inviare i tuoi dati.
Affiliato
Egemone Srl
Via Roma, 98 33013 Gemona Del Friuli (UD)

Il nostro staff


  • Emily Bendo
    Coordinatrice

  • Emanuele Londero
    Collaboratore

  • Tomi Dedushaj
    Affiliato
Via Roma, 98 33013 Gemona Del Friuli (UD)
Zona: Gemona del Friuli
Mostra su mappa
Affiliato
Egemone Srl
Via Roma, 98 33013 Gemona Del Friuli (UD)

2026 Tecnocasa Franchising S.p.A. - P. IVA 08365160152 - Via Monte Bianco 60/A 20089 Rozzano (MI). Ogni agenzia ha un proprio titolare ed è autonoma. Privacy policy | Policy utilizzo | Cookie policy